About
2025
2024
2023
2022
2021
2020
2019
2018
쿄베이커리 방배
슬로 가산디지털단지
이촌동 주택
ⓒ2014 - 2025 f_actory lab. All right reserved.
Cafe
House
Aesthetic
Cafe
Aesthetic
Cafe
House
Cafe
Memorial
Aesthetic
Restaurant / Retail
Cafe
Aesthetic
Cafe
Library
Public
Aesthetic
Cafe
Cafe / Restaurant
Cafe / Restaurant
Cafe
House
Cafe
Library
Public
Cafe / Restaurant
Cafe
Aesthetic
Cafe / Retail / Restaurant
Cafe / Retail / Restaurant
Cafe / Retail / Restaurant
Library
Library
Office
Public
Cafe
Cafe
Aesthetic
House
Aesthetic
Cafe
Cafe
Cafe, Pub
Cafe
Cafe
Office
Cafe
Aesthetic
Cafe
Office
Educational
Restaurant
Cafe
Educational
Cafe
Cafe
Cafe
Office
Cafe
Cafe
Cafe
Cafe
Restaurant
Educational
Pub
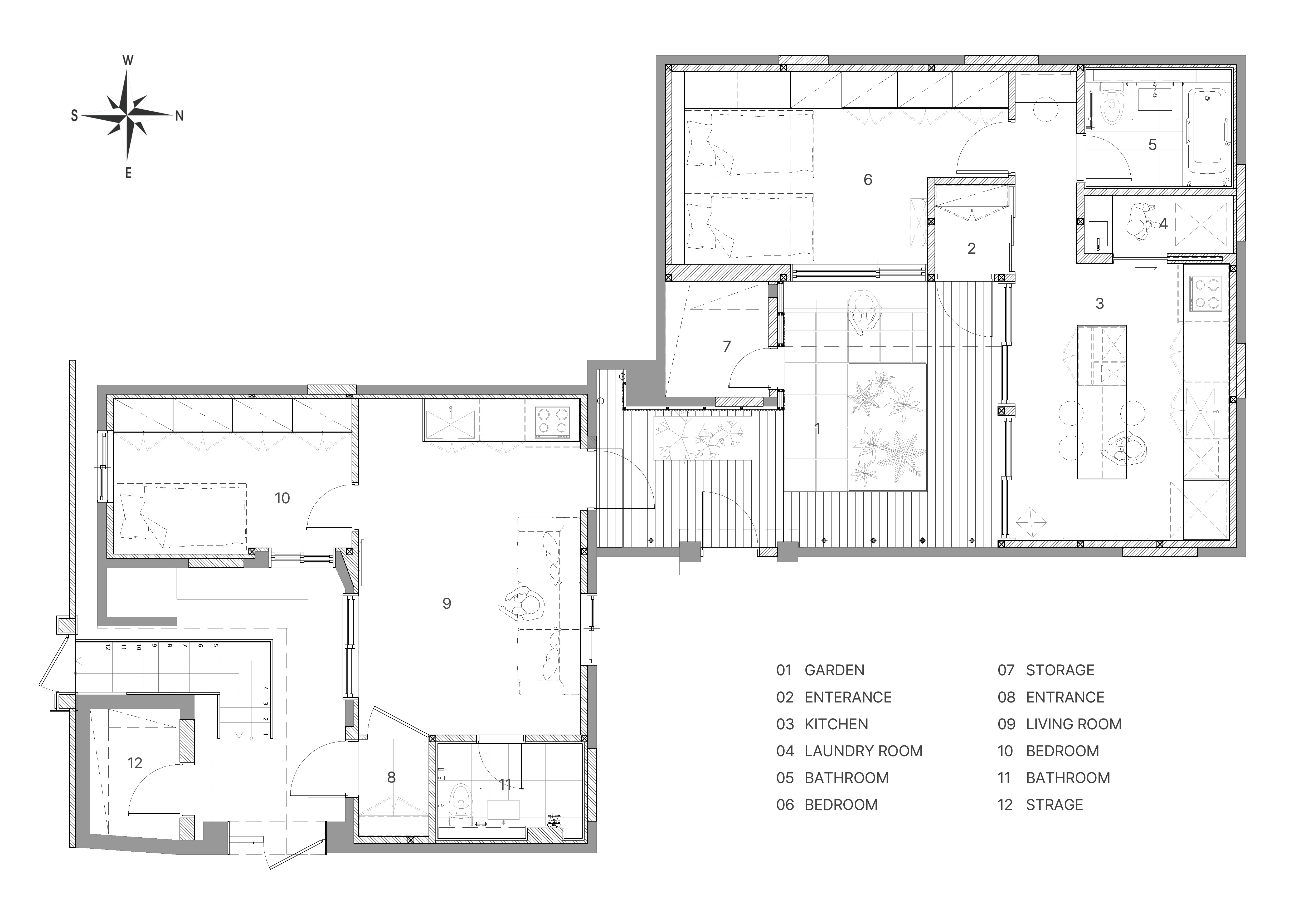
Ichon-dong house, 2025
이촌동 주택
Work : Layout, Interior, Exterior
Location : Ichon-dong
Usage : House
Area : 144m² / 1F
지난 2024년 진행했던 용산 이촌동 주택 리노베이션에 이어, 바로 옆과 뒤에 위치한 두 채의 집을 추가로 다듬는 확장 프로젝트를 진행했습니다.
이번 공간의 주인은 기존 클라이언트의 부모님이신 노부부입니다.
가족 간의 왕래가 잦고 상호 돌봄이 필요한 생활 환경을 고려하여, 물리적으로 분리되어 있던 세 채의 주택을 심리적·동선적으로 하나의 집처럼 느껴질 수 있도록 공간 구조를 재구성하는 것이 이번 프로젝트의 핵심 목표였습니다.


본래 각각 분리되어 있던 주택을 자연스럽게 연결하기 위해, 맞닿아 있던 기존 창호를 바닥선까지 컷팅하여 도어로 변경하고, 본집과 바로 인접한 두 채의 동선을 내부에서 직접 오갈 수 있도록 구조를 재구성하였습니다.


공간에 소소한 포인트를 더하기 위해 세탁실과 중문에는 간살 도어를 적용하였습니다.
간살 구조를 통해 시각적으로는 공간의 분절감을 줄이면서 동시에 프라이버시를 유지할 수 있도록 하였으며, 은은하게 스며드는 빛과 그림자가 공간에 따뜻한 분위기를 더하도록 의도하였습니다.


노부부가 장시간 머무르는 공간이라는 점을 고려하여, 자극적이기보다는 고즈넉하고 따뜻한 무드를 중심으로 구성하였습니다.
전체적으로 차분한 우드 톤과 부드러운 색감을 사용하여 편안하고 안정적인 인상을 주도록 하였으며, 과도한 장식 요소보다는 재료의 질감과 빛의 흐름을 통해 자연스럽게 공간의 깊이가 느껴지도록 디자인하였습니다.




연로하신 두 분의 라이프스타일을 최우선으로 고려했습니다.
거동이 불편하신 점을 감안하여 공간 전체의 바닥 단차를 지양하여 이동의 제약을 없애고, 욕실과 현관 등 낙상 위험이 있는 곳에는 안전손잡이를 시공하여 기능적인 배려를 더했습니다.



고즈넉한 분위기를 담은 이 공간이 클라이언트 분들의 삶에 여유와 평온을 더해주는 든든한 휴식처가 되기를 소망합니다.


Ichon-dong house, 2025
이촌동 주택
Work : Layout, Interior, Exterior
Location : Ichon-dong
Usage : House
Area : 144m² / 1F
지난 2024년 진행했던 용산 이촌동 주택 리노베이션에 이어, 바로 옆과 뒤에 위치한 두 채의 집을 추가로 다듬는 확장 프로젝트를 진행했습니다.
이번 공간의 주인은 기존 클라이언트의 부모님이신 노부부입니다.
가족 간의 왕래가 잦고 상호 돌봄이 필요한 생활 환경을 고려하여, 물리적으로 분리되어 있던 세 채의 주택을 심리적·동선적으로 하나의 집처럼 느껴질 수 있도록 공간 구조를 재구성하는 것이 이번 프로젝트의 핵심 목표였습니다.


본래 각각 분리되어 있던 주택을 자연스럽게 연결하기 위해, 맞닿아 있던 기존 창호를 바닥선까지 컷팅하여 도어로 변경하고, 본집과 바로 인접한 두 채의 동선을 내부에서 직접 오갈 수 있도록 구조를 재구성하였습니다.


공간에 소소한 포인트를 더하기 위해 세탁실과 중문에는 간살 도어를 적용하였습니다.
간살 구조를 통해 시각적으로는 공간의 분절감을 줄이면서 동시에 프라이버시를 유지할 수 있도록 하였으며, 은은하게 스며드는 빛과 그림자가 공간에 따뜻한 분위기를 더하도록 의도하였습니다.


노부부가 장시간 머무르는 공간이라는 점을 고려하여, 자극적이기보다는 고즈넉하고 따뜻한 무드를 중심으로 구성하였습니다.
전체적으로 차분한 우드 톤과 부드러운 색감을 사용하여 편안하고 안정적인 인상을 주도록 하였으며, 과도한 장식 요소보다는 재료의 질감과 빛의 흐름을 통해 자연스럽게 공간의 깊이가 느껴지도록 디자인하였습니다.




연로하신 두 분의 라이프스타일을 최우선으로 고려했습니다.
거동이 불편하신 점을 감안하여 공간 전체의 바닥 단차를 지양하여 이동의 제약을 없애고, 욕실과 현관 등 낙상 위험이 있는 곳에는 안전손잡이를 시공하여 기능적인 배려를 더했습니다.



고즈넉한 분위기를 담은 이 공간이 클라이언트 분들의 삶에 여유와 평온을 더해주는 든든한 휴식처가 되기를 소망합니다.



